Populárne vyhľadávania
Pozor: Posledné kusy na sklade!
Dostupný dátum:
Indukčnú varnú dosku s varnou zónou combiZone oceníte nielen pri príprave veľkého množstva pokrmov.
Spojením dvoch indukčných zón v jednu získate optimálny priestor pre veľké pekáča a hrnce.
Varnú dosku môžete ľahko ovládať ľahkým dotykom prsta.
Intuitívny panel touchControl umožňuje jednoduché nastavenie bez akýchkoľvek otočných voličov. Ideálne riešenie pre pohodlné varenie.
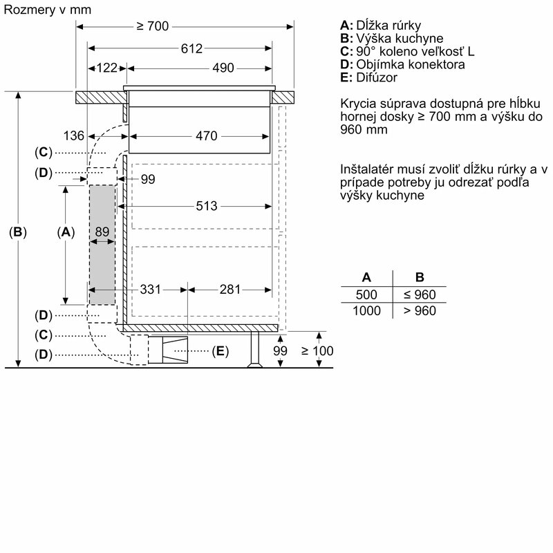
Systém InductionAir Plus kombinuje dva špičkové spotrebiče: indukčnú varnú dosku a revolučný odsávač pár integrovaný do varnej dosky.
Vďaka tejto priestorovo úspornej koncepcii si môžete užívať väčšiu slobodu pri varení a vytvoriť si vlastnú kuchyňu. InductionAir Plus zaručuje účinný výkon odsávania s minimálnou hlučnosťou. inductionAir Plus vás podporuje v tom, aby ste boli dokonalým hostiteľom, pretože zaručuje vždy čerstvý vzduch bez zápachu a mastnoty s minimálnou hlučnosťou..
Indukčná varná doska s odsáváním InductionAir Plus je vybavená trojitým systémom ochrany proti pretečeniu, ktorý pomáha zabrániť vniknutiu kvapalín alebo iných tekutých látok do varnej dosky.
Ak sa do spotrebiča niečo vyleje, môžete jednoducho vybrať tukový filter a bezpečne ho umyť v umývačke riadu.
S funkciou powerBoost zvýšite výkon indukčnej varnej dosky až o 50 %, čím ušetríte až 35 % času, ktorý obvykle potrebujete na zohriatie hrncov.
Už nemusíte toľko obstávať pri sporáku. Namiesto toho venujte ušetrený čas miešaniu, dochucovaniu a servírovaniu chutných jedál.
Timer s automatickým vypnutím bezpečne vypne varnú zónu po uplynutí nastavenej doby varenia.
Tlačidlom detská poistka je možné rýchlo a jednoducho chrániť každý indukčný varný panel proti neoprávnenému ovládaniu.
Detská poistka zablokuje všetky funkcie varného panelu stlačením jedného tlačidla. Zamknutie sa odblokuje opätovným stlačením tlačidla a podržaním pár sekúnd.
Ihneď horúce. Ihneď studené. Užijte si benefity indukčné varné dosky od Siemens. Teplo je odovzdávané priamo do hrncov a panvíc a ich obsah je ohrievaný pomocou indukčných cievok, bez zahrievania varného panelu.
Čo to pre vás znamená? Čas ohrevu je kratší, vyššia bezpečnosť a varný panel sa čistí oveľa jednoduchšie.
| Farba | čierna |
| Šírka | 80 cm |
| Počet varných zón, ktoré možno použiť súčasne | 4 |
| Rozmery varných zón | 2 x (19,0 x 21,0 cm), 1 x (18,0 cm Ø), 1 x (21,0 cm Ø) |
| Výkon varných zón | 1 x 1.8 (3.1), 3 x 2.2 (3.7) kW |
| Typ rámu | bezrámový dizajn |
| Počet sálavých varných zón | 0 |
| Počet indukčných varných zón | 4 |
| Funcia Boost | všetky varné zóny |
| Max. výkon odvetrania | 500 m³/h |
| Výkon ventilátora pri intenzívnom stupni - prevádzka odvetrávania | 622 m³/h |
| Max. výkon recirkulácie vzduchu | 441 m³/h |
| Výkon ventilátora pri intenzívnom stupni - prevádzka recirkulácie | 595.0 m³/h |
| Akustický výkon pri maximálnych otáčkach (2010/30/EC) | 69 dB |
| Zvýšenie akustického výkonu (2010/30/EC) | 74 dB |
| Hlučnosť | 69 dB(A) re 1pW |
| Spotreba energie varnej dosky | 178.3 |
| Dodávané príslušenstvo | 1 x CleanAir Plus pachový filter |
| Rozmery spotrebiča | 223x802x522 mm |
| Rozmery zabaleného spotrebiča | 430x940x660 mm |
| Min. výška niky | 490 mm |
| Max. výška niky | 490 mm |
| Minimálna šírka niky | 750 mm |
| Maximálna šírka niky | 750 mm |
| Hĺbka niky | 223 mm |
| Výška spotrebiča nad pracovnou plochou | 6.0 mm |
| Príkon | 7400 W |
| Nominálne napätie | 220-240/380-415 V |
| Dĺžka prívodného kábla | 110 cm |
| Typ zástrčky | bez zástrčky |
| priložené používateľské príručky | [DE, EN, FR, TR] |
| Typ ovládania | senzorové ovládanie touchControl |
| ovládanie nastavenia varnej zóny | 17 výkonových stupňov |
| Flexibilita varných zón | kombinovateľná varná zóna |
| Rlektronické hodiny | áno |
| Časovač | Vypínač, časovač odpočítavania (na zariadení) |
| Pripomenutie čistenia filtra | áno |
| regulácia výkonových stupňov | 3 stupne + intenzívny |
| Bezpečnostné zariadenie | Detská poistka, Vypnutie detekcie času inaktivity, Vypnutie detekcie panvice/hrnca, Vypnutie detekcie rozliatia |
| Ukazovateľ zvyškového tepla | Separátne |
| Rozmery spotrebiča | 223x802x522 mm |
| Typ varnej dosky | indukčná varná doska s integrovaným odsávaním |
| Počet varných zón, ktoré možno použiť súčasne | 4 |
| Typ rámu | bezrámový dizajn |
| Max. výkon odvetrania | 500 m³/h |
| Akustický výkon pri maximálnych otáčkach (2010/30/EC) | 69 dB |
Zvažujete nákup v inom obchode? Overte si, akým spôsobom realizuje vybavenie reklamácie. Zasielanie spotrebiča na opravu a čakanie na vybavenie býva zdĺhavé. U nás sa Vám to nestane.
Indukčná doska ohrieva priamo hrniec elektromagnetickým poľom — je o 30-40 % úspornejšia a bezpečnejšia (povrch zostáva relatívne studený). Sklokeramická doska ohrieva odporovou špirálou cez sklo a je lacnejšia na kúpu. Indukcia vyžaduje feromagnetický riad — overte magnetom na dne hrnca.
Väčšinu varných dosiek je možné zapojiť na 230V (jednofázovo), ale výrobca často odporúča 400V (trojfázové) pripojenie pre plný výkon. Pri 230V zapojení sa výkon na jednotlivých zónach reguluje elektronicky. Zapojenie vždy zverte elektrikárovi — vyžaduje sa samostatný istič (minimálne 16A, ideálne 32A).
Na dennú údržbu stačí vlhká handrička a špecializovaný čistič na sklokeramiku. Pripálené zvyšky odstráňte škrabkou na sklokeramiku (so žiletkovým ostím) pod ostrým uhlom. Nepoužívajte drôtenky, abrazívne prášky ani agresívne čističe. Cukor a plasty odstráňte ihneď, kým je doska teplá — po stuhnutí môžu poškodiť povrch.
Štandardná šírka zabudovanej varnej dosky je 60 cm (výrez cca 56 x 49 cm). Existujú aj užšie modely 30 cm (domino) a širšie 70, 80 alebo 90 cm. Hĺbka výrezu je zvyčajne 48-51 cm. Presné rozmery výrezu nájdete v technickom liste produktu — dodržte ich, inak doska nesadne.
Príkon varnej dosky závisí od počtu zón — 4-zónová má celkový príkon 6-7,4 kW. Reálna spotreba je nižšia, pretože nevaríte na všetkých zónach naraz. Indukčná doska spotrebuje pri rovnakom jedle o 30-40 % menej energie ako sklokeramická, pretože ohrieva rýchlejšie a presnejšie.
Booster (Power Boost) dočasne zvýši výkon varnej zóny o 30-50 % nad bežnú úroveň. Ideálne na rýchle zohrievanie veľkého množstva vody alebo rozogriatie panvice. Funkcia sa automaticky vypne po 5-10 minútach podľa modelu. Dostupná je takmer výlučne na indukčných doskách.
| Farba |
|
| Časovač |
|
| Povrch |
|
| Umiestnenie ovládania |
|
| Počet varných zón |
|
| Power Management 230V |
|
| Detská poistka |
|
| Vyhotovenie |
|
| Pripojenie na 230V |
|
| FlexiCook zóna |
|
| Ovládanie |
|
| Minimálna hlučnosť |
|
| Maximálna hlučnosť |
|
| Max. výkon odsávania |
|
| Hĺbka |
|
| Šírka |
|
| Výška |
|